Любое серьезное мероприятие требует наличия заранее намеченного плана, в котором предусматриваются все детали предстоящих действий.
Что такое архитектурное проектирование
Капитальное строительство – не исключение: перед тем, как возвести здание, необходимо иметь четкое представление не только, как будет выглядеть объект, но и понимать, как и из чего его строить без риска обрушения, и, каким образом рационально создать комфортное, безопасное и приятное для визуального восприятия жизненное пространство. Словом, на стройке возникает масса вопросов, и ответы на них закладываются в рабочем проекте, служащим для строителей своеобразным руководством к действию.
Рабочий проект строительства объединяет несколько важных разделов:

Архитектурный раздел – результат творческой деятельности профессионального архитектора, и именно он отражает дизайнерский замысел будущей постройки. В состав архитектурного проекта входят архитектурные решения с описанием, чертежами и схемами. Вторая, конструктивная часть проекта, разрабатывается инженерами, и содержит информацию об устройстве каждого конструктивного элемента сооружения.
Виды проектирования домов и коттеджей в Москве
Одна из особенностей объектов малоэтажной постройки – отсутствие единых требований к архитектуре и планировке. Если многоквартирные дома возводятся по серийным или типовым разработкам, то будущим собственникам частных домовладений предоставляется полная свобода выбора площади, формы, этажности, планировки и других деталей сооружения. Отсюда возникают вопросы, связанные с проектированием: стоит ли заказывать создание проекта с нуля, или имеет смысл воспользоваться готовым комплектом документов?

Индивидуальный проект
Индивидуальный проект дома представляет собой объемный комплект документов, подробно описывающих технологии и нюансы строительства. Авторское проектирование строится на личных предпочтениях заказчиков, но главное преимущество такой концепции – субъективность, принимающая во внимание специфику местности и расположения объекта земельной недвижимости.
Речь идет как раз о том случае, когда владелец участка под строительство решает подойти к теме основательно, с учетом всех нюансов, касательно собственных запросов и чаяний, и в жесткой взаимосвязи с условиями проведения стройки.
Индивидуальный проект – это авторская работа, в которой во внимание принимается ландшафт местности, расположение участка относительно сторон света и розы ветров, тип и состав грунта, уровень пролегания водоносных слоев и, конечно, пожелания всех членов семьи в разумных пределах.
Преимущества индивидуального проекта:
01
Тандем команды специалистов и лично заинтересованного заказчика дает наилучший результат в отношении продуманности каждой тонкости.
02
Подбор рациональной фундаментной конструкции путем расчетов, что означает наивысшую степень надежности, при отсутствии переплат за лишний запас прочности.
03
Оптимальное расположение здания, помещений и окон, что позволяет получить максимально выгодную ориентацию в пространстве.
04
Получение дома «мечты». Персональная планировка исключает потребность в доработке с целью адаптации под личные нужды.
05
Возможность экономии в перспективе. Помимо того, что в момент построения архитектурной композиции, учитывается финансовый потенциал заказчика, что отражается на масштабах стройки и подборе стройматериалов, грамотный подход позволяет закладывать в проект эксплуатационные расходы. К примеру, тщательно продуманная энергетическая эффективность позволит существенно сократить траты на отопление.

Типовой проект
Под типовыми подразумеваются готовые проекты, ранее разработанные и реализованные строительной компанией. Очевидно, что всякая организация, специализирующаяся на домостроении, имеет в своем арсенале ряд объектов, сданных в эксплуатацию. Все эти постройки предварительно проектировались, и теперь документы остались в резерве, дожидаясь нового клиента.
Эти типовые проекты домов популярны
Неоспоримые достоинства готовых проектов:
Использование типового проекта является выгодным решением по следующим причинам:
01
Не нужно ждать, пока проект «отшлифуется» и утвердится, и стройку можно начинать безотлагательно.
02
Возможность существенно сэкономить на работе сотрудников проектного отдела. К слову, при заказе строительства «под ключ» в нашей компании, выбранный типовой проект предоставляется бесплатно.
03
Технологичность решения. Готовые разработки уже прошли испытание на практике, поэтому не вызывают сомнений в рациональности.
04
Готовый проект допускает внесение некоторых изменений с целью адаптации к текущим обстоятельствам.

Проект дома по Вашему эскизу
Замыслив поставить дом, собственники участков под строительство обычно заранее обдумывают план будущего жилья и имеют, как минимум, примерное представление об архитектурном облике здания.
Нередко, для лучшей ориентировки, клиенты обращаются к Интернет-ресурсам или печатным изданиям, предоставляя архитектору фотографии или наброски от руки. И это вполне приемлемый подход к делу, упрощающий задачу специалиста, который на основании эскиза разработает пакет проектных документов.
Состав проектной документации
Разработка архитектурного проекта под ключ
Независимо от габаритов, планировки и дизайна, в проектировании не бывает мелочей, ведь дом – это не просто крыша над головой, а самое настоящее родовое гнездо, призванное отвечать эстетическим и практическим потребностям каждого члена семьи, обеспечивая комфорт, покой и безопасность на протяжении многих десятков лет. Иначе нет никакого смысла затевать строительство, которое в любом случае потребует чрезвычайно серьезных финансовых вложений.
Базовыми составляющими любого проекта является архитектурный и конструкторский разделы, необходимые для получения разрешения на строительство. Проекты инженерных коммуникаций разрабатываются по запросу заказчика.

Архитектурный раздел (АР)
Состоит из текстовых и графических материалов, содержащих подробную информацию об объемно-планировочных решениях с привязкой к заданному участку. АР служит инструкцией для строителей, освещая такие вопросы, как вид и объем материалов, технологии строительства и многое другое. Эта часть проекта позволяет рассчитать теплотехнические показатели для обеспечения оптимального теплоснабжения, а также посчитать стоимость строительства.

Конструктивный раздел (КР)
Качество проработки конструкторской части проекта определяет срок службы и надежность постройки. В состав документации входят расчеты нагрузок всех несущих элементов, глубины заложения и ширины фундамента, а также параметры и устройство лестничных конструкций. На основе КР составляется строительная смета. Конструктивное решение позволяет наглядно видеть сильные и слабые стороны сооружения, исключить аварийные ситуации в ходе строительно-монтажных работ, надежно крепить все детали здания, оптимизировать строительные процессы.
Разработка проекта инженерных сетей под ключ
Инженерные коммуникации – важнейшие системы жизнеобеспечения любого жилья, без которых немыслимы цивилизованные условия обитания. Устройство систем коммуникаций закладывается в отдельных проектах:
Проект инженерных сетей содержит три раздела:

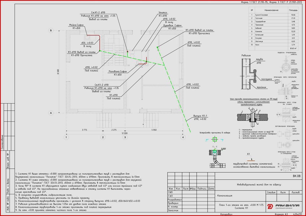
Водоснабжение и канализация
Документы составляются на основе расчетов потери давления в трубопроводах. Помимо общих указаний, поэтажных схем разводки водопровода канализации, в комплект входит спецификация оборудования с учетом всех потребителей.

Отопление и вентиляция
Раздел содержит описание системы теплоснабжения с опорой на тепловую карту строения, расчетные показатели теплоэффективности и климатические особенности. В состав проекта входит ведомость рабочих чертежей, поэтажные схемы отопления и вентиляции, спецификация оборудования.

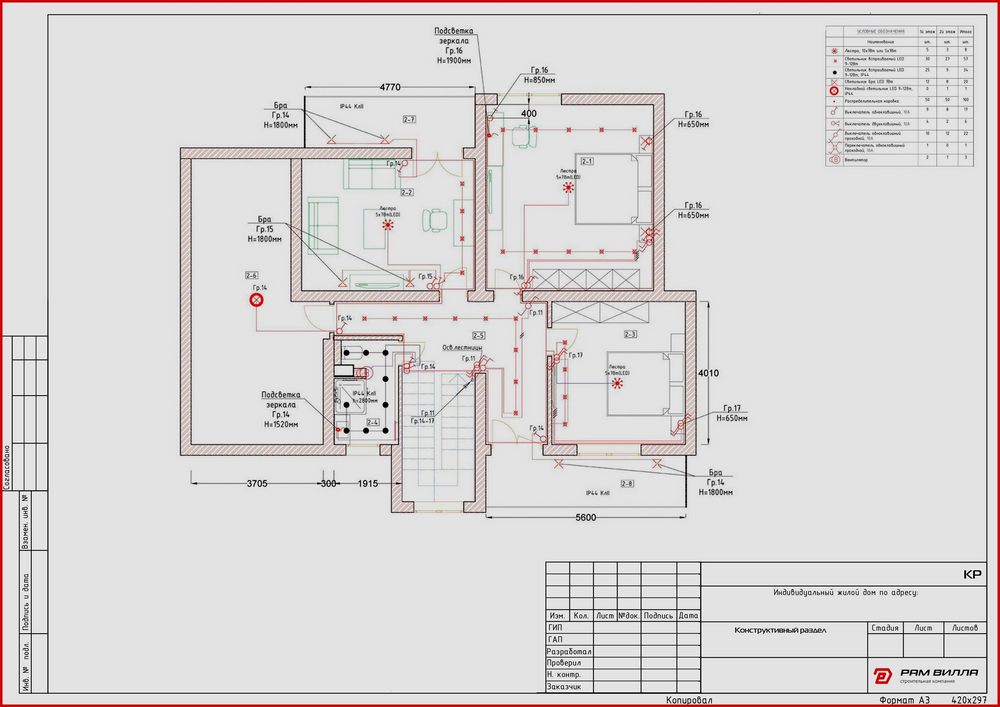
Энергообеспечение и молниезащита
В пакет документов входят расчетные схемы нагрузок, поэтажные схемы силовой и слаботочной сетей, планы кровли и фасадов с указанием зон защиты молниеотводов, монтажные схемы молниеприемной части, токоотводов и системы заземления, спецификация оборудования с указанием оптимальных сечений кабелей и проводов.
Этапы разработки проекта частного дома
Начало сотрудничества со специалистами проектного отделения предполагает личную встречу, в процессе которой решаются краеугольные вопросы. В дальнейшем свидания становятся необязательными, и связь с архитектором можно поддерживать любым удобным для вас способом. В основе содержания рабочей документации лежит утвержденный эскиз, поэтому архитектурная и конструкторская части разрабатываются практически одновременно, но в тесном согласовании друг с другом.

Консультация

Знакомство с объектом

Создание эскизной части

Разработка архитектурного раздела

Разработка конструкторского раздела

Разработка инженерных разделов

Завершение проектирования
При заказе подряда на строительство - проект бесплатно
При заказе подряда на строительство «под ключ», типовой проект из коллекции нашей компании предоставляется бесплатно.
?
«Проект бесплатно»?
В состав комплекта проектных документов входят архитектурные и конструкторские решения.
Вопрос-ответ по проектированию домов
Что нужно для индивидуального проектирования?
Перед выездом на объект архитектора и инженера следует подготовить следующие документы: градостроительный план участка, кадастровый номер, результаты геологических и геодезических изысканий. Для разработки индивидуального проекта исходными данными служат особенности участка: размеры, рельеф участка, регион строительства; особенности дома: примерный метраж, этажность, количество и набор помещений, желаемая конструкция фундамента, стеновой и кровельный материал, конструкция перекрытий, наличие и толщина утеплителя, тип отделки фасада, наличие мансардного и/или цокольного этажа, желаемая стилистика архитектуры.
Сколько времени занимает разработка проекта дома?
В среднем, на создание проекта уходит от пары недель до одного месяца, что зависит от затейливости архитектуры и взыскательности заказчика.
Сколько стоит проект дома?
Стоимость создания индивидуального проекта составляет не больше 2% от общей сметы строительства, однако данные инвестиции с лихвой окупаются рациональностью конструктивных решений и оптимизацией расхода материалов.
Вы строите дома после проектирования?
Да. Строительство домов и коттеджей «под ключ» - основное направление деятельности нашей компании.
Где заказать проект дома в Москве?
Проектный отдел строительной компании «Рус Вилла» принимает заказы на индивидуальное проектирование домов и коттеджей в Москве и Московской области. На вопросы ответим по телефону.