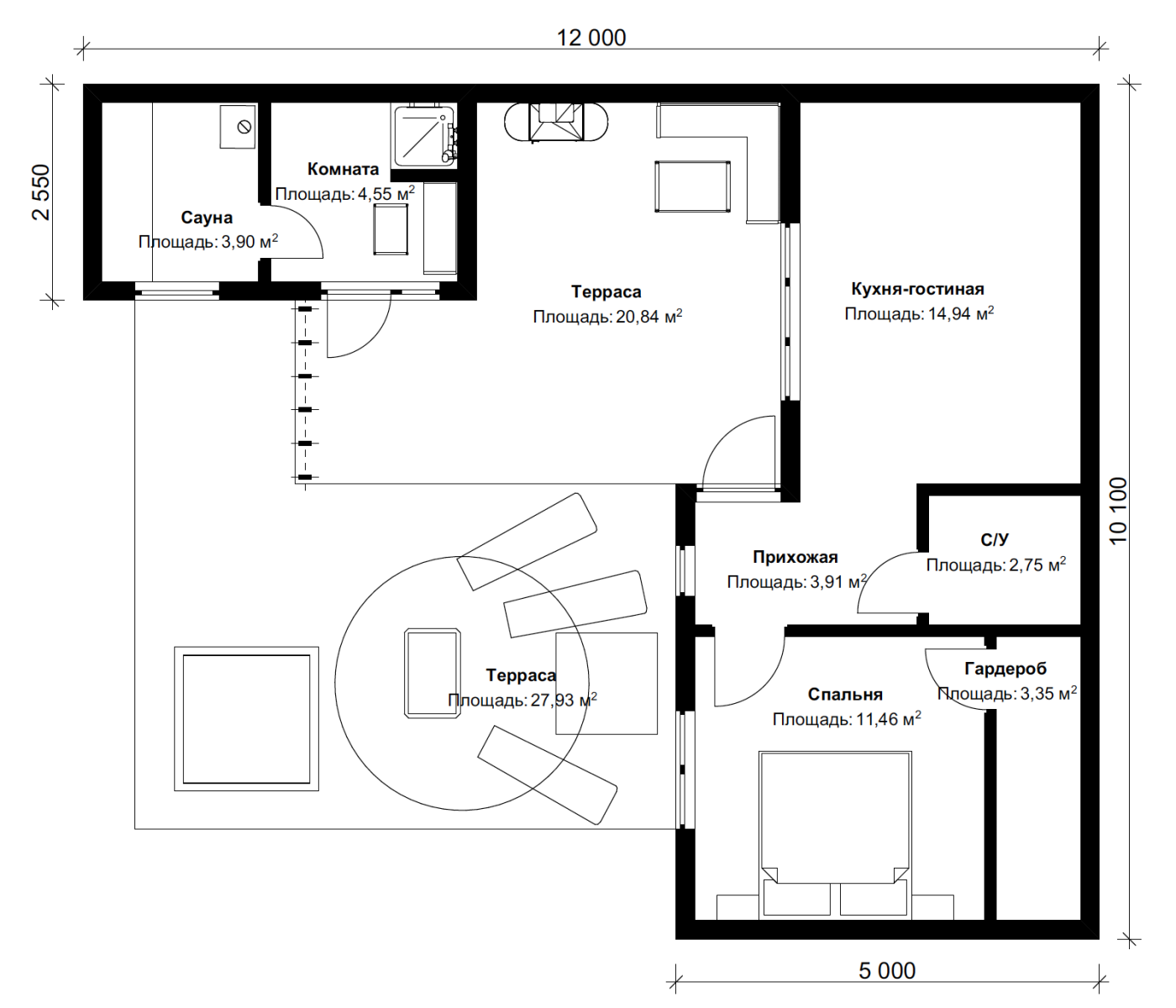
Дом с баней 12 на 10 из панелей

Лямбда

4.08 млн руб.

В ипотеку от 19.6 тыс./мес.
Общая площадь дома
93.63 м2
Отапливаемая площадь
44.86 м2
Площадь террас и крылец
48.77 м2
Спален
1
Санузлов
2
Габариты
10.00 × 12.00 м
Гараж
нет
Площадь 1 этажа 69.61 м2

Выберите комплектацию

Базовая стоимость:
4.08 млн руб.

Дополнительные опции

Окна +254.9 тыс. руб.

•    Профиль Rehau ПВХ белый 70мм с замкнутым армированием оцинкованной сталью, толщина стенок;
•    Фурнитура Roto;
•    Энергосберегающий стеклопакет двойной 40мм;
•    Площадь открывных створок не менее 50%, одна створка поворотно -откидная; открывания внуть;
•    Отливы металлические белые.

Двери межкомнатные +50.4 тыс. руб.

Двери межкомнатные филенчатые Bravo 

Инженерные коммуникации +462.3 тыс. руб.
Водоснабжение и водоотведение - аксиальная система.              Монтаж холодного и горячего водоснабжения - аксиальная система. Трубы из сшитого полиэтилена Stout 16х2.2 мм

Электромонтажные работы.

Монтаж системы электроснабжения дома в соответствии с ПУЭ. Без установки розеток, выключателей (только выводы кабеля из подрозетника). Параметры: Ввод силового кабеля в дом по воздуху(м) = 0; Вывод под розетки(шт) = До 40 точек (3 комнаты, гостиная, 1 с/у); Вывод на освещение(шт) = До 16 точек (3 комнаты, гостиная, 1 с/у); Вывод дополнительный на освещение;                                              Выключатель проходной;                                                                                  Мастер-ключ(шт) = Нет;                                                                                    Вывод на вентилятор(шт) = 2;                                                                             Монтаж комплекта штыревого заземления(шт) = Нет;                                   Вывод на интернет (шт) = Нет;                                                                              Вывод на TV(шт) = Нет;                                                                                               Ввод силового кабеля в дом(м) = 0;                                                      Характеристики:                                                                                                          Кабель силовой ВВГ-нг(A)LS 3х1,5 мм; Кабель силовой ВВГнг(А)-LS 4х6.0; Кабель силовой ВВГ-Пнг(А) 3х2.5;

Что входит в базовую комплектацию

Стены наружние
Заводской каркас стеновых панелей из строганной доски хвойных пород, камерной сушки. Пиломатериал обработан огне-биозащитой;
• Ветро-влагозащита Изоспан АМ снаружи;
• Двухслойная пленка для пароизоляции внутри;
• Стеновой утеплитель RockWoll тощиной 150мм.
• Толщина наружней стены 220 мм;
Внутренние стены
Заводской каркас стеновых панелей из строганной доски хвойных пород, камерной сушки. Пиломатериал обработан огне-биозащитой;
• Двухслойная пленка для пароизоляции внутри;
• Стеновой утеплитель RockWoll 100мм.
• Толщина стеновой панели(м) = 130 мм;
Пол
Заводской каркас стеновых панелей из строганной доски хвойных пород, камерной сушки. Пиломатериал обработан огне-биозащитой;
• Ветро-влагозащита Изоспан АМ;
• Двухслойная пленка для пароизоляции;
• Стеновой утеплитель RockWoll тощиной 200мм.
• Толщина пола 250 мм;
Кровля
Заводской каркас стеновых панелей из строганной доски хвойных пород, камерной сушки. Пиломатериал обработан огне-биозащитой;
• Ветро-влагозащитная мембрана Изоспан;
• Двухслойная пленка для пароизоляции внутри;
• Стеновой утеплитель ТеплоKnauf тощиной 200мм.
• Толщина кровли min 250 мм;
• Финишное покрытие кровли из пвх мембраны
• Водосточная система
Отделка наружняя (как на картинке)
• Отделка стен планкеном или скандинавским профилем хвойных пород обработанным влагозащитой.
• Декоративные элементы стен из крашенного прокатного металла
Черновая отделка
Внутренняя отделка панелей стен черновая.
Внутренняя отделка стен листовым материалом ГСПВ 12 мм
Фундамент
Фундамент на винтовых сваях.
Устройство свайного фундамента с использованием винтовых свай d=108 мм, обвязка брусом 150х150
Монтаж
Работы по монтажу и доставке дома префаб.
4.08 млн руб.
Заказать
В стоимость входит:
Проект дома
Строгий технадзор
Видеонаблюдение 24/7
10 лет гарантии
Опытный прораб
Бригада из России
Личный менеджер
Профессиональный архитектор

Ознакомьтесь с этапами строительства вашего дома

Согласование всех вопросов и нюансов перед началом работ
Этап 1
Время: от 1 дня
Согласование всех вопросов и нюансов перед началом работ
В первый этап входит:
  • Выбор проекта дома, количества и высоты этажей;
  • Выбор материалов для строительства дома;
  • Расчет сметы;
Первый этап предоставляет возможность ознакомиться с преимуществами сотрудничества с нами без каких-либо обязательств.
Подбор проекта по вашим потребностям и желаниям или разработаем индивидуальный
Этап 2
Время: от 7 дней
Подбор проекта по вашим потребностям и желаниям или разработаем индивидуальный
Детали проекта:
  • Планировка и размещение помещений;
  • Экстерьер и фасад;
  • Инженерные системы;
  • Безопасность и энергоэффективность;
  • 3D визуализация будущего дома;
В любой типовой проект можно внести изменения по вашему желанию.
Устройство фундамента будущего дома
Этап 3
Время: от 7 дней
Устройство фундамента будущего дома
Какие работы производятся:
  • Подготовка площадки;
  • Устройство опалубки;
  • Установка арматуры;
  • Подготовка бетонной смеси;
  • Заливка бетонной смеси;
  • Уход за бетоном;
Все работы производятся с соблюдением строительных норм и правил, чтобы обеспечить долговечность и безопасность здания.
Возведение стен
Этап 4
Время: от 10 дней
Возведение стен
Материалы строительства стен могут такими:
  • Блоки (газоблок, керамический блок, пеноблок, арболит и т.д.);
  • Кирпич;
  • Монолитная технология;
  • Сборно-монолитные;
  • Каркасно-панельные;
От выбранного материала для строительства коробки дома зависят сроки строительства.
Установка крыши
Этап 5
Время: от 14 дней
Установка крыши
Этапы работ для классической кровли:
  • Строительство стропильной системы в зависимости от выбранного варианты крыши (скатная, вальмовая и другие);
  • Установка изоляционного слоя кровли;
  • Укладка кровельного материала (металлочерепица, вальмовая, профнастил, мягкая кровля и т.д.);
Плоская кровля:
  • Установка изоляционного слоя кровли;
  • Утепление монолитного перекрытия;
  • Укладка кровельного материала – ПВХ мембрана;
Сроки установки зависят от сложности проекта и выбранного материала кровли.
Внешние отделочные работы
Этап 6
Время: от 14 дней
Внешние отделочные работы
Что входит в работы:
  • Установка окон;
  • Установка дверей;
  • Фасадные работы;
Двери, окна и фасад определяются с заказчиком заранее и уже заложены в смете.
Уже реализованные проекты
Хотите увидеть одну из наших действующих строек?

Приезжайте и лично убедитесь в нашей компетентности. Оставьте контакты и мы пригласим вас на объект.

Внимание! Все поля обязательны для заполнения.
Отправляя форму, вы соглашаетесь с Политикой обработки данных

Часто задаваемые вопросы
У нас свой проект. Построите?

Конечно. Наш менеджер сможет рассчитать сроки строительства дома, а так же его стоимость. При необходимости еще до заключения договора мы отрисуем дом в специальной программе и вы сможете прогуляться по его комнатам в виртуальном пространстве.

Предоставляете гарантию на построенный дом?

Гарантия до 10 лет на построенные нашей компанией дома. Мы уверены в профессионализме наших сотрудников и партнеров, которые поставляют нам строительные материалы и остуществляют работы.

Какая будет доплата, если стоимость материалов изменится?

Мы работаем по договору в котором фиксируем цену - никаких доплат не будет, даже если стоимость матерала вырастет в 1,5-2 раза. Мы имеем резервы материалов, которые приобрели еще по старым ценам.

У меня нет всей суммы на строительство. Есть ли у вас ипотечные программы?

Мы работаем со Сбербанком и другими кредитными организациями. При оформлении заявки на нашем сайте, сообщите нашему менеджеру, что планируете взять кредит через нашу компанию и он сориентирует вас по срокам и ставкам.

Нужно заплатить всю сумму сразу или можно платить частями?

В нашей компании гибкая система платежей. Изначально идет оплатата разработку проекта, затем идут поэтапные платежи. Например: 80% за работы и материалы по фундаменту, оставшуюся часть после сдачи фундамента, далее стены первого этажа, перекрытие, второй этаж, крыша и окна оплачиваются по такой же схеме - поэтапно.

Можно посмотреть на ваши работы?

Конечно, мы строим по всей Московской области. При общении с менеджером сообщите ему, что вы хотели бы посетить один или несколько объектов и он подберет вам наиболее подходящие по вашему месторасположению.

Чем вы лучше других?

Для полной прозрачности мы устанавливаем камеры видеонаблюдения на участке. Предоставляем доступ к специальной программе на телефоне. Вы в режиме 24/7 сможете наблюдать за всеми строительными объектами и при возникновении вопросов звонить прорабу и получать разъяснения.

Мы - компания полного цикла. Мы берем проект от идеи, до полного воплощения на участке. За нами не приходится доделывать работу. Например крышу мы заканчиваем полностью (подшиваем софитами, устанавливаем снегозадержатели, водосточную систему).

Даже в самые нелегкие времена мы фиксируем цену на строительство. Мы понимаем, что нашим Заказчикам комфортнее сразу знать, сколько они в итоге заплатят, без подводных камней. Мы предоставляем расчет и готовы строить по ранее оговоренной цене. Цену мы фиксируем в договоре подряда.

Из каких материалов строите?

Мы строим каменные дома из газобетона и керамических блоков. В работе используем проверенных производителей, таких как Бонолит, Ytong, Wienerberger, Технониколь и др.

Каковы сроки строительства?

Здесь многое зависит от различных факторов: например погоды, уровня грунтовых вод, уклона на участке, сложности заезда, площади дома и прочих условий. В среднем строительство дома из газобетона в два этажа 100 - 150 м2 занимает 3 - 4 месяца.

Рассчитаем стоимость строительства вашего дома за 1 день | Оставьте заявку