Дом 1000 кв размером 36 на 35 с гаражом и чердаком

"Йокогама"

38.10 млн руб.

В ипотеку от 182.8 тыс./мес.
Общая площадь дома
1070.50 м2
Спален
13
Санузлов
6
Габариты
36.30 × 34.90 м
Гараж
60.80 кв.м.
Площадь 1 этажа 530.01 м2
Площадь 2 этажа 450.02 м2

1 этаж

1 прихожая 12,38 м²

2 кабинет 33 м²

3 гардеробная 7,86 м²

4 гараж 60,78 м²

5 подсобное помещение 16,25 м²

6 гостиная + холл 56,6 м²

7 санузел 3,4 м²

8 столовая 27,02 м²

9 кухня 40,16 м²

10 хоз. помещение 15,46 м²

11 холл + лестница 20,72 м²

12 коридор 7,98 м²

13 хоз. помещение 3,17 м²

14 гостиная + кухня 28,38 м²

15 гардеробная 2,59 м²

16 санузел 4,59 м²

17 коридор 17,8 м²

18 сауна 4,58 м²

19 СПА 44,1 м²

20 комната 16,45 м²

21 коридор 4,68 м²

22 комната 16,07 м²

23 спортивный зал 40,12 м²

24 хоз. помещение 20,96 м²

25 хоз. помещение 24,91 м²

Всего 530,01 м²

2 этаж

1 холл 51,62 м²

2 комната 24,85 м²

3 комната 17,64 м²

4 санузел 16,79 м²

5 гардеробная 12,29 м²

6 комната 28,63 м²

7 санузел 7,31 м²

8 комната 20,59 м²

9 гардеробная 6,26 м²

10 лестница 5,38 м²

11 комната 27,26 м²

12 гардеробная 5,04 м²

13 санузел 6,5 м²

14 санузел +хоз. помещение 23,73 м²

15 комната 56,02 м²

16 комната 28,18 м²

17 комната 28,42 м²

18 санузел 39,24 м²

19 гардеробная 44,27 м²

Всего 450,02 м²

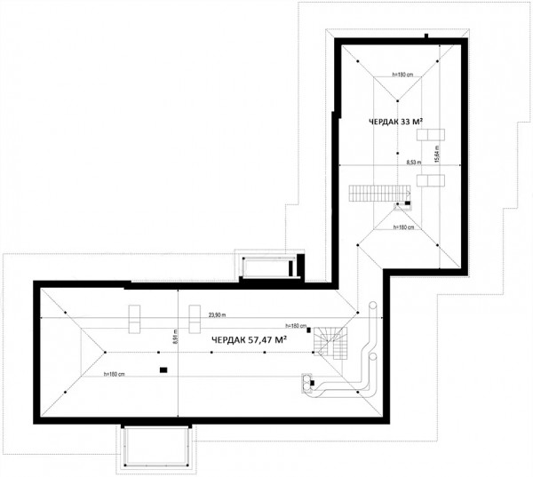
3 этаж

1 чердак 57,47 м²

2 чердак 33 м²

Всего 90,47 м²

Всего: 1070,5 м²

План дома "Йокогама" - это проект роскошной резиденции, наше самое большое предложение из серии домов-резиденций. На этот раз, благодаря размеру дома в 1000 кв м2 и неповторимому стилю, он получил заслуженное название "Йокогама". Он действительно по-настоящему роскошный, чрезвычайно комфортный дом - квартира для любой большой семьи. Обширная функциональная программа означает, что она имеет большую поверхность, но, углубляясь в дизайн, ясно видно, что ни одна поверхность здесь не имеет смысла. Это просто мечта о супер-роскошном доме, где жители всегда будут чувствовать комфорт, пространство, не будут протискиваться по узким коридорам или гнездиться в маленьких комнатах. Флоридская Резиденция - это дом, который способен утолить жажду пространства для инвестора, жаждущего такого пространства. Внешняя архитектура дома не оставляет сомнений - "Йокогама" - это современная вилла, которая должна произвести впечатление на своих жителей, посетителей, посетителей и людей, проходящих по улице. Фасады дома открыты с большим остеклением в сад, усиливая впечатление от внутреннего пространства. Это не дом для скромных людей. Дизайн дома "Йокогама" состоит из двух прямоугольных блоков, соединенных между собой и образующих букву «L», закрывающих таким образом расширенные террасы и сад в тихом интимном анклаве. Представительский вход направляет нас прямо к интерьеру дома. С самого входа красивый вид на двухэтажную гостиную с большим остеклением открывает интерьер в сад. Слева у нас есть кухня, столовая и множество подсобных помещений. У входа справа красивый кабинет - кабинет. Далее мы идем в очень большой гараж с навесом, подсобными помещениями и - во втором блоке, к обширной части дома отдыха и спорта, с тренажерным залом и мини-спа. На первом этаже у нас есть несколько отдельных детских и гостевых люксов, а также супер-роскошная часть вашего дома с гардеробом размером более одной однокомнатной квартиры (не правда ли, что многие дамы мечтают о такой роскоши ...). Дизайн дома Florida Residence, безусловно, является домом для людей с действительно толстым кошельком. Когда вы решите построить дом в соответствии с этим проектом, вам гарантировано, что жажда пространства и безумие большого дома приручены и очень рационализированы - без преувеличения показа и эпатеза. Эффект потрясающий. в расширенную рекреационно-спортивную часть дома, с тренажерным залом и мини-спа. На первом этаже у нас есть несколько отдельных детских и гостевых люксов, а также супер-роскошная часть вашего дома с гардеробом размером более одной однокомнатной квартиры (не правда ли, что многие дамы мечтают о такой роскоши ...). Дизайн дома Florida Residence, безусловно, является домом для людей с действительно толстым кошельком. Когда вы решите построить дом в соответствии с этим проектом, вам гарантировано, что жажда пространства и безумие большого дома приручены и очень рационализированы - без преувеличения показа и эпатеза. Эффект потрясающий. в расширенную рекреационно-спортивную часть дома, с тренажерным залом и мини-спа. На первом этаже у нас есть несколько отдельных детских и гостевых люксов, а также супер-роскошная часть вашего дома с гардеробом размером более одной однокомнатной квартиры (не правда ли, что многие дамы мечтают о такой роскоши ...). Дизайн дома Florida Residence, безусловно, является домом для людей с действительно толстым кошельком. Когда вы решите построить дом в соответствии с этим проектом, вам гарантировано, что жажда пространства и безумие большого дома приручены и очень рационализированы - без преувеличения показа и эпатеза. Эффект потрясающий. Дизайн дома Florida Residence, безусловно, является домом для людей с действительно толстым кошельком. Когда вы решаете построить дом в соответствии с этим проектом, у вас есть гарантия, что жажда пространства и безумие большого дома приручены здесь и очень рационализированы - без преувеличения показа и эпатеза. Эффект потрясающий. Дизайн дома "Йокогама", безусловно, является домом для людей с действительно толстым кошельком. Когда вы решаете построить дом в соответствии с этим проектом, у вас есть гарантия, что жажда пространства и безумие большого дома приручены здесь и очень рационализированы - без преувеличения показа и эпатеза. Эффект потрясающий.

Выберите комплектацию

Базовая стоимость:
38.10 млн руб.
Выберите материал стен

Дополнительные опции

Окна +6.68 млн руб.

•    Профиль Rehau ПВХ белый 70мм с замкнутым армированием оцинкованной сталью, толщина стенок;
•    Фурнитура Roto;
•    Энергосберегающий стеклопакет двойной 40мм;
•    Площадь открывных створок не менее 50%, одна створка поворотно -откидная; открывания внуть;
•    Отливы металлические белые.

Коммуникации +5.15 млн руб.

Электромонтаж

  • Кабель ВВГ НГ-Ls
  • Монтаж электрощита
  • Без монтажа розеток и выключателей (только подрозетники)

Инженерные коммуникации

  • Коллекторно – лучевая система отопления
  • Труба PEX – A 16мм
  • Коллекторная группа
  • Радиаторы Kermi
  • Без котла и обвязки
Наружная отделка +4.55 млн руб.

Комбинированная наружная отделка

  • Устройство базового армоштукатурного слоя без маяков толщиной до 5мм
  • финишная отделка фасада декоративной штукатуркой на силикатно - силиконовой основе фактура камешковая/короед.;

Характеристики:

  • Сетка армирующая фасадная 50м2, 5х5 150г/м2;
  • Штукатурка силикатно-силиконовая Ceresit CT 174 камешковая фракция 2 мм 25 кг;
  • Штукатурно - клеевая смесь Ceresit Термо;
Внутренняя черновая отделка +5.29 млн руб.

Внутренняя черновая отделка

  • Устройство утепленной стяжки на 1м этаже
  • Устройство стяжки на втором этаже
  • Оштукатуривание стен гипсовой штукатуркой (во влажных помещениях цементной)
  • Устройство откосов на окнах

Что входит в базовую комплектацию

Фундамент
Фундамент - ребристая плита "перевернутая чаша":
• Толщина плиты – 250мм
• Высота ребра: 300 мм;
• Бетон М350 (В25)
• Рабочая арматура А500С – 12мм
• Армирование плиты в два уровня ячейкой 200х200мм
• Гидроизоляция плиты – профилированная мембрана Planter
. Щебеночное основание 100мм
• Песчаная подушка – 300мм
• Геотекстиль по основанию песчаной подушки
• Закладные трубы коммуникаций
• Устройство канализационной трассы с выводом за пределы фундамента;
Стены несущие
Стены несущие газобетон / теплая керамика
• Наружные стены 400мм газобетон / 440мм керамика
• Внутренние несущие стены 200мм газобетон / 200мм керамика
• Блоки газобетонные Bonolit D500; / Теплая керамика Porotherm
• Кладка на тонкошовный клей; / Теплый раствор
• Черновая высота потолка 3,0м; Высота второго этажа - 2.75
• Утепленный монолитный армопояс
• Утепленные монолитные перемычки
• Армирование кладки через каждые 3 ряда - А3 d6мм;
Перегородки
• Перегородки межкомнатные газобетон / теплая керамика
• Толщина перегородок 100мм газобетон Bonolit/ 120мм керамика Porotherm
Лестница Ж/Б
Лестница монолитная
• 2-х маршевая или Г-образная
• Лестничная площадка или забежные ступени
• Бетон М350, В25;
• Армирование - А3 d12мм
Межэтажное перекрытие
Перекрытие - монолитное плоское
• Бетон - М350, В25;
• Армирование - А3 d12мм двумя арматурными сетками 200 х 200;
• Толщина перекрытия - 200мм;
• Подпорные колонны (по проекту);
• Монолитные ригели (по проекту);
Чердачное перекрытие
Перекрытие чердачное – утепленное по лагам
• Лаги перекрытия – доска обрезная 200х50мм
• Утепление – 200 мм минеральная вата KNAUF
• Пароизоляционная мембрана
• Гидро-ветрозащитная мембрана
• Обрешетка шаговая из обрезной доски 100х25мм
Крыша
Крыша холодная - металлочерепица / гибкая черепица
• Стропила – доска обрезная 150х50мм
• Контробрешетка – брусок обрезной 40х40мм
• Шаговая обрешетка – обрезная доска 100х25мм
• Гидроизоляционная мембрана
• Кровля – металлочерепица Монтерей РЕ 0,45 Grandline/ Гибкая черепица Shinglas Ранчо по OSB 9мм
• Снегозадержатели трубчатые
• Кол-во вентвыходов : 3 шт;
Крыльцо и террасы
Устройство террас и крылец выполняется в уровень с крышей.

*Патио в расчет не входит
Проектная документация
• Архитектурные решения(АР)
• Конструктивные решения(КР)
Услуги
• Подготовка к началу работ
• Установка бытовки
• Установка Биотуалета
• Проживание бригад Уборка территории и вывоз мусора по окончанию работ
• Доставка материалов по Московской обл.
38.10 млн руб.
Заказать
В стоимость входит:
Проект дома
Строгий технадзор
Видеонаблюдение 24/7
10 лет гарантии
Опытный прораб
Бригада из России
Личный менеджер
Профессиональный архитектор

Ознакомьтесь с этапами строительства вашего дома

Согласование всех вопросов и нюансов перед началом работ
Этап 1
Время: от 1 дня
Согласование всех вопросов и нюансов перед началом работ
В первый этап входит:
  • Выбор проекта дома, количества и высоты этажей;
  • Выбор материалов для строительства дома;
  • Расчет сметы;
Первый этап предоставляет возможность ознакомиться с преимуществами сотрудничества с нами без каких-либо обязательств.
Подбор проекта по вашим потребностям и желаниям или разработаем индивидуальный
Этап 2
Время: от 7 дней
Подбор проекта по вашим потребностям и желаниям или разработаем индивидуальный
Детали проекта:
  • Планировка и размещение помещений;
  • Экстерьер и фасад;
  • Инженерные системы;
  • Безопасность и энергоэффективность;
  • 3D визуализация будущего дома;
В любой типовой проект можно внести изменения по вашему желанию.
Устройство фундамента будущего дома
Этап 3
Время: от 7 дней
Устройство фундамента будущего дома
Какие работы производятся:
  • Подготовка площадки;
  • Устройство опалубки;
  • Установка арматуры;
  • Подготовка бетонной смеси;
  • Заливка бетонной смеси;
  • Уход за бетоном;
Все работы производятся с соблюдением строительных норм и правил, чтобы обеспечить долговечность и безопасность здания.
Возведение стен
Этап 4
Время: от 10 дней
Возведение стен
Материалы строительства стен могут такими:
  • Блоки (газоблок, керамический блок, пеноблок, арболит и т.д.);
  • Кирпич;
  • Монолитная технология;
  • Сборно-монолитные;
  • Каркасно-панельные;
От выбранного материала для строительства коробки дома зависят сроки строительства.
Установка крыши
Этап 5
Время: от 14 дней
Установка крыши
Этапы работ для классической кровли:
  • Строительство стропильной системы в зависимости от выбранного варианты крыши (скатная, вальмовая и другие);
  • Установка изоляционного слоя кровли;
  • Укладка кровельного материала (металлочерепица, вальмовая, профнастил, мягкая кровля и т.д.);
Плоская кровля:
  • Установка изоляционного слоя кровли;
  • Утепление монолитного перекрытия;
  • Укладка кровельного материала – ПВХ мембрана;
Сроки установки зависят от сложности проекта и выбранного материала кровли.
Внешние отделочные работы
Этап 6
Время: от 14 дней
Внешние отделочные работы
Что входит в работы:
  • Установка окон;
  • Установка дверей;
  • Фасадные работы;
Двери, окна и фасад определяются с заказчиком заранее и уже заложены в смете.
Уже реализованные проекты

Похожие проекты

Хотите увидеть одну из наших действующих строек?

Приезжайте и лично убедитесь в нашей компетентности. Оставьте контакты и мы пригласим вас на объект.

Внимание! Все поля обязательны для заполнения.
Отправляя форму, вы соглашаетесь с Политикой обработки данных

Часто задаваемые вопросы
У нас свой проект. Построите?

Конечно. Наш менеджер сможет рассчитать сроки строительства дома, а так же его стоимость. При необходимости еще до заключения договора мы отрисуем дом в специальной программе и вы сможете прогуляться по его комнатам в виртуальном пространстве.

Предоставляете гарантию на построенный дом?

Гарантия до 10 лет на построенные нашей компанией дома. Мы уверены в профессионализме наших сотрудников и партнеров, которые поставляют нам строительные материалы и остуществляют работы.

Какая будет доплата, если стоимость материалов изменится?

Мы работаем по договору в котором фиксируем цену - никаких доплат не будет, даже если стоимость матерала вырастет в 1,5-2 раза. Мы имеем резервы материалов, которые приобрели еще по старым ценам.

У меня нет всей суммы на строительство. Есть ли у вас ипотечные программы?

Мы работаем со Сбербанком и другими кредитными организациями. При оформлении заявки на нашем сайте, сообщите нашему менеджеру, что планируете взять кредит через нашу компанию и он сориентирует вас по срокам и ставкам.

Нужно заплатить всю сумму сразу или можно платить частями?

В нашей компании гибкая система платежей. Изначально идет оплатата разработку проекта, затем идут поэтапные платежи. Например: 80% за работы и материалы по фундаменту, оставшуюся часть после сдачи фундамента, далее стены первого этажа, перекрытие, второй этаж, крыша и окна оплачиваются по такой же схеме - поэтапно.

Можно посмотреть на ваши работы?

Конечно, мы строим по всей Московской области. При общении с менеджером сообщите ему, что вы хотели бы посетить один или несколько объектов и он подберет вам наиболее подходящие по вашему месторасположению.

Чем вы лучше других?

Для полной прозрачности мы устанавливаем камеры видеонаблюдения на участке. Предоставляем доступ к специальной программе на телефоне. Вы в режиме 24/7 сможете наблюдать за всеми строительными объектами и при возникновении вопросов звонить прорабу и получать разъяснения.

Мы - компания полного цикла. Мы берем проект от идеи, до полного воплощения на участке. За нами не приходится доделывать работу. Например крышу мы заканчиваем полностью (подшиваем софитами, устанавливаем снегозадержатели, водосточную систему).

Даже в самые нелегкие времена мы фиксируем цену на строительство. Мы понимаем, что нашим Заказчикам комфортнее сразу знать, сколько они в итоге заплатят, без подводных камней. Мы предоставляем расчет и готовы строить по ранее оговоренной цене. Цену мы фиксируем в договоре подряда.

Из каких материалов строите?

Мы строим каменные дома из газобетона и керамических блоков. В работе используем проверенных производителей, таких как Бонолит, Ytong, Wienerberger, Технониколь и др.

Каковы сроки строительства?

Здесь многое зависит от различных факторов: например погоды, уровня грунтовых вод, уклона на участке, сложности заезда, площади дома и прочих условий. В среднем строительство дома из газобетона в два этажа 100 - 150 м2 занимает 3 - 4 месяца.

Рассчитаем стоимость строительства вашего дома за 1 день | Оставьте заявку